家を新築したり、リフォームしたりする時には新しく照明器具を選びます。
賃貸などで多い、お部屋の天井に一つの大きな照明器具というパターンから脱却して、多灯照明の雰囲気を楽しめる暮らしはいかがですか?
照明プランがある場合も任せっきりにするのではなく、変更することも可能なので良くチェックしてみましょうね。
実際の検証写真などをすぐにご覧になりたい方は、途中を読み飛ばしてください~
LED照明についてちょっと説明します

すっかり世の中に定着したLED照明ですが、ちょっと特徴のおさらいをしておきます。
●寿命が長い (定格寿命40000時間の物の場合、1日10時間点灯でおよそ10年間使用できます)
●紫外線や赤外線をほとんど含まない。よって紫外線による色の退色などがない。お洋服の変色などが軽減されます。(でも自然光でも変色するのでWICの窓にはご注意!)
●他にも少ない消費電力、即時MAX点灯、水銀や鉛などの環境汚染につながる物質を含まないなどがあります。
家計にも環境にも優しいのがLED照明と言えるでしょう。
LED照明で出来ること

センサー付き照明の種類が増えた
LED以前はセンサーでパッと点いたり消えたり、あるいはぼんやり点いて人を感知すると明るくなる、という照明は白熱電球でないとできませんでした。
廊下やトイレの照明を人感センサーで入り切り出来ると、いちいちスイッチを触らなくてもいいのは便利ですし、切り忘れが無くなります。
調光出来るようになった
LEDになりリモコンや壁付けコントローラーで簡単に、明るく⇔暗く⇔消灯、出来るようになりました。
Bluetooth対応の器具ならリモコン1台で複数の器具を調光調色出来ます。(オーデリック照明)
日本人は煌々と明るい光に慣れすぎているきらいがあり、リラックスしたい夜などは少し暗めの照明にするなどのシーンに合わせた使い方をしたいものです。
調色出来るようになった
光の色には大きく分けて昼白色と呼ばれる昼間の太陽光の光と、電球色と呼ばれるホテルやおしゃれなレストランの照明のようなオレンジ色の光があります。
ダイニングテーブルの上のペンダント照明を調色対応器具にすると、一日の始まる朝ご飯や子供が宿題をするときには昼白色にし、家族で囲む夕飯時は電球色にするなどシーンに応じた使い分けができます。
Bluetooth対応の器具ならリモコン1台で複数の器具を調光調色出来ます。(オーデリック照明)
こちらも先の調光と同じで、オフィスや病院の照明のような昼白色の光色に慣れている方が多いように思います。是非、シーンによる光の色の使い分けをおススメしたいと思います。
LED電球選び方。明るさ、ワット数はどう選ぶ?

さて、ここまでLEDの特徴などを書いてきましたが、ここではLED照明、LED電球の明るさの選び方について書いてみたいと思います。
LEDの基準になる明るさの単位は「lm」、「lumen」の略で「ルーメン」と呼びます。LED以前では消費電力の単位「W数」「ワット数」で明るさも判断していましたが、LEDでは光源から放たれる光の量を表すルーメンを明るさの単位としています。
新築などでトイレなどに新しく照明器具を設置されるのであれば、400ルーメンあれば十分かと思います。
煌々と明るい訳でもなく、暗くもない程度かと思います。
電球取り換えの場合、上の表は一般白熱電球からの取り換えの参考として見ることができます。
例えばトイレの60Wの白熱電球(15Wの蛍光灯電球)を同じくらいの明るさのLED電球に変えるなら、810ルーメン以上のLED電球を選びます。(普通サイズのトイレ空間だとかなり明るそう・・・)
蛍光灯電球の場合10Wでしたら白熱電球40Wと同等程度の明るさですから、485ルーメン以上のLED電球を選びます。
選ぶ際には電球の光の色も注意して選んでください。電球色か昼白色、あるいは調光調色タイプがあります。(後で紹介します)
ややこしいのは、LED電球とLED一体型照明器具(電球を使わず器具と光源がひとつになっている)とは基準になる明るさ「ルーメン」が違うことなのです。
LED照明の明るさ(ワット数)はどうする?

下の表をご覧ください。実はLED一体型器具のタイプと定格光束値によって畳数表示の基準が変わります。(すべてオーデリック様よりお借りしました)
まずは「LED一体器具」または「全般配光型LED電球器具」の場合




1畳あたり400ルーメン~が基準となります。(1室1灯シーリング)
次は「準全般配光型LED電球使用器具」の場合


こちらですと1畳あたり340ルーメン~が基準となります。(1室1灯シーリング)
ご覧頂くとわかるかと思いますが、同じ8畳でも器具タイプが違うと必要なルーメン数が違うのです。
天井の真ん中につけるシーリングなどでしたら照明器具メーカーのカタログに「〇畳」と書かれているので、そちらを参考にしてもいいでしょう。(明るすぎる懸念はありますが)
表示のない器具の場合は新築やリフォームであれば依頼先に相談するのが一番かもしれません。
あくまで乱暴な目安ですが、1畳=400ルーメンで計算も出来ます。(器具のデザインなどにより明るさには大きな差が出ます)
実際のLED照明を検証して見る

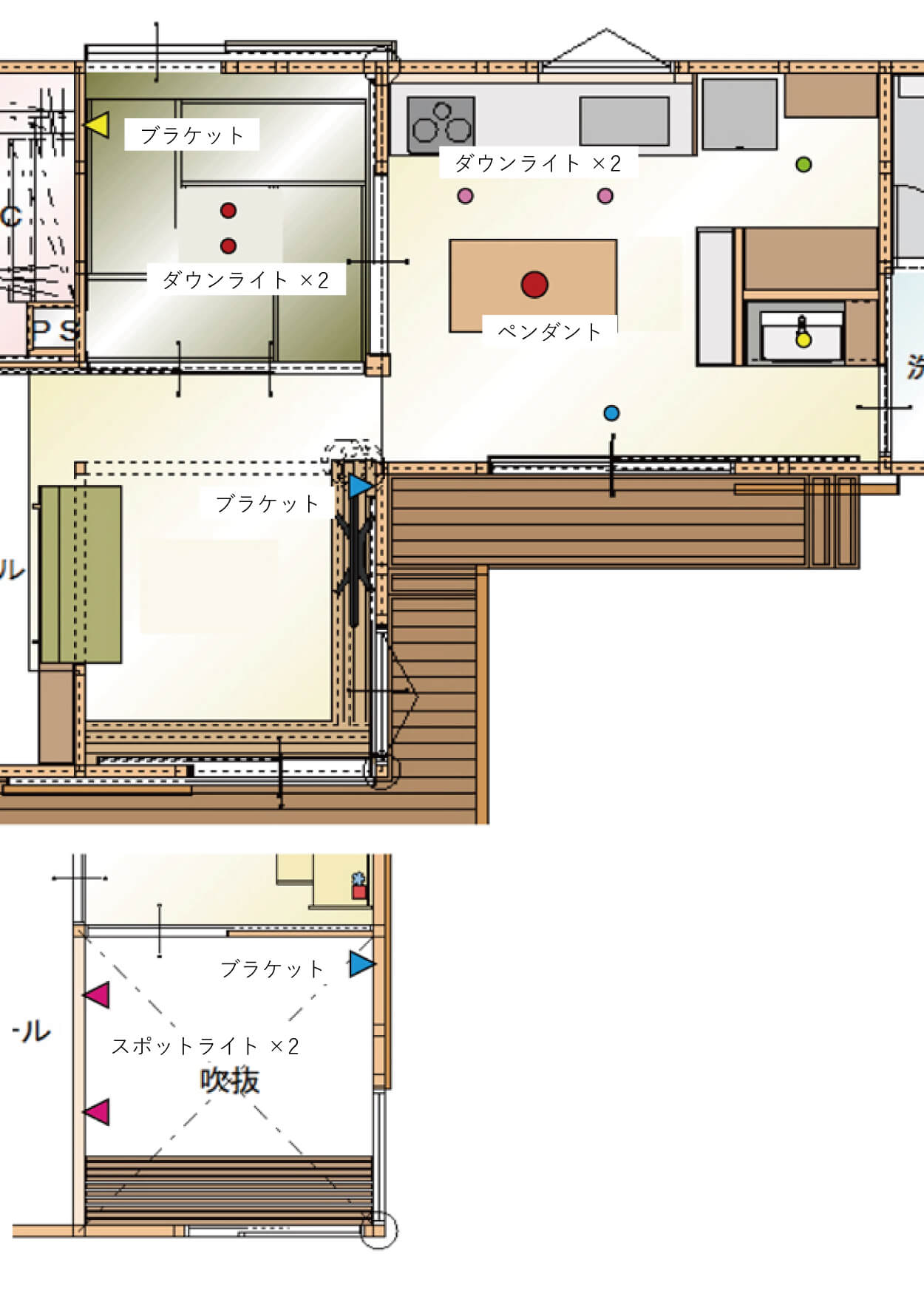
リビングの一角、和室の照明計画


4.5畳の和室です。右側の暗く写っているところはダイニングキッチンです。
(このダイニングの照明を点灯させなかったのは大失敗 泣 陰気臭く見える~)
上の写真のブラケット(壁付け照明)のみの場合でも、割と部屋の角に配灯しているので、壁2面、天井が明るく感じるので、そこまで暗く感じることはないように思いますが、
この状態に床置きのフロアライトがあれば部屋としては十分だと思います
下の写真はどうですか?
ダウンライトが壁と床を照らしているので明るくなりました
部屋全体を明るくしたい場合にはこちらのやり方がおススメですね
4.5畳の部屋で使用している器具がLED一体型ですから、先ほどの表では2700ルーメン必要とされていますが、こちらではダウンライトとブラケットで合計1205ルーメンになります。
推奨の数字よりも半分以下になりました。
確かにこの状態で座卓で新聞を読もうとすると暗く感じるかもしれません。
その場合には部屋全体の明るさを明るくするのではなく、手元を照らすテーブルランプをおススメします。
この部屋の配灯の考え方
このスペースはリビングの一部(寛ぐ空間)と考え、特に明るくする考えはありませんでした。
そのため天井のダウンライト無しで、壁付け照明とフロアライト(写真にはない)で良かったのですが、もう少し明るくしてほしいという要望で、天井のダウンライトを追加しました。
今後このスペースでお子様が宿題などをされるようであれば、デスクライトを使って頂きたいと思います
ダイニングキッチンの照明計画


和室横のダイニングキッチン(およそ6畳)を見てみましょう。
上の写真は和室はブラケットのみ、DKはペンダントのみ点灯しています。
下の写真は上記に加えて、和室・ダイニング共にダウンライトも点灯しています。
全体に明るくなりましたが、食事時などには明るすぎるかもしれません。
食事時にはダウンライトが消えていても、
隣の和室のブラケットが点いていればその方が空間にメリハリと奥行きが出て良くなると思います。
実はこのペンダントにはリモコンで調色調光出来る電球を採用しています。曇り空の朝食時や子供たちが宿題をするときなどは、昼白色にして使っていただけます。
こちらはキッチンということもあり和室よりは明るく計画していますが、それでも先程の表では3200ルーメン必要とされるところ、2200ルーメンしかありません。
この部屋の配灯の考え方
LEDの時代になってお伝えしたいこと

長く一般的な日本の住宅は1室1灯、大きなシーリングライトで部屋の隅々まで照らすのが普通でした。
ダウンライトを使っても、やはり部屋の隅々まで照らすような配灯が今でも一般的だと思います。(私もついついやりがちです・・・)
例えば上の和室やDKの天井にシーリングライトをつければとても明るくはなりますが、くつろぐ灯りにはなりませんね。
なかなかお伝えしにくいのですが、上記の実例でDKのペンダントライトだけで過ごすとき、隣の和室でが真っ暗だと陰気臭く、より暗く感じます。
ところが和室のブラケットが点くと、さほど明るい照明ではなくてもそこに視線は誘導され、明るさを感じます。陰気臭いのが落ち着く感じになり、暗く感じたのが明るく感じます。
これがメリハリのある照明で、陰影を楽しむということだと思います。
冒頭にお伝えしたようにLEDの時代になって調光や調色がとても簡単に、しかも最近ではかなりリーズナブルになりました。
決して暗さを推奨しているのではなく、LED照明になったおかげで明るくも暗くも自在になったことを楽しむ暮らしをおススメしたいと思っています。
必要な場所に必要な時、必要な明るさがあれば、あとは遊び心で陰翳を楽しめたらいいですね。
必要な明るさは年齢とともに変化する
一つ忘れてはいけないのは、必要な明るさというものは年齢とともに変化するという事です。
20代の目と、40代の目さらには70代の目が必要としている明るさは倍ではすみません。
LED照明器具は寿命がとても長くなりました。
という事は今の自分基準にプラスアルファの明るさを加えたいという事です。
寛ぐ灯りは目が何かに集中することは少ないのでまだいいとしても、新聞を読む、手仕事をする、という時は明るくないととても目が疲れます。
スタンドを使うことを私も推奨してはいますが、計画段階でどこにスタンドを置くのかもシュミレーションしておきたいところです。
最近では充電式のデスクライトでデザインの良いものも出てきました。
スタンドを使う生活とともに、調光調色出来る器具を使って歳を重ねてからも目にやさしい暮らしがしたいものです。
ぜひ、照明器具を選ぶ際には暮らしに彩を添えるような照明計画にしたいですね。
吹き抜けリビングと寝室の、調光や調色の動画を載せました。動画撮影が初心者なものでイマイチな出来ですが、よろしければご覧になってください。

吹き抜けにつけたブラケットはこちら。
1階部分と2階部分に配置しました。434ルーメンとなっているのは昼白色の一番明るい場合です。

スポット型のブラケットはこちら。
画像は天井付けになっていますが、壁にもつけられます。
シーリング照明はリモコンで操作できるものがほとんどですが、ブラケットやダウンライトなどはまだまだリモコンではなく、壁付けコントローラーがほとんどです。
そんな中実はこれらの照明はブルートゥースリモコンで操作します。(お手持ちのスマホでも出来ます)
そのため壁付けコントローラーは必要ありません。
毎日の暮らしの中で生活シーンに合わせて操作することを考えると、手元にリモコンの方が便利だと思いました。(シーンごとの操作を記憶させるライティングコントローラーなるものもあります。こちらについてはまた詳しく記事にします)
スイッチにもリモコンになるものなどもあり、照明関連の便利なものをまた記事にしたいと思います。
家を建てることを計画中の方はこちらの記事もどうぞ



